THE BRIEF
The house was undergoing a full refurbishment and already had planning consent for a rear extension. The commission was to develop design options for the extension, focusing on parapet detailing, window and door design, and the size and quantity of rooflights/lanterns.











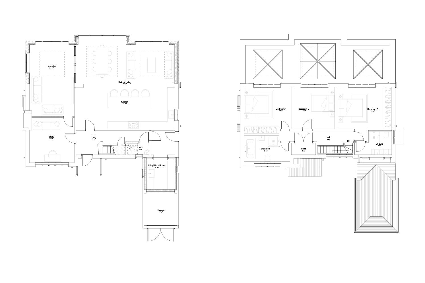
OUR SOLUTION
A rear extension was developed to consolidate kitchen, dining and living functions into a single open-plan room, while retaining a separate reception and adding a study and utility/boot room off the hall. Four façade and rooflight options tested rear elevation composition, parapet treatment and lantern layouts.

