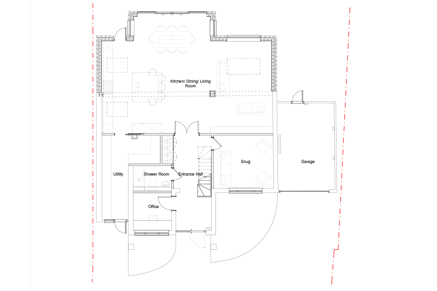
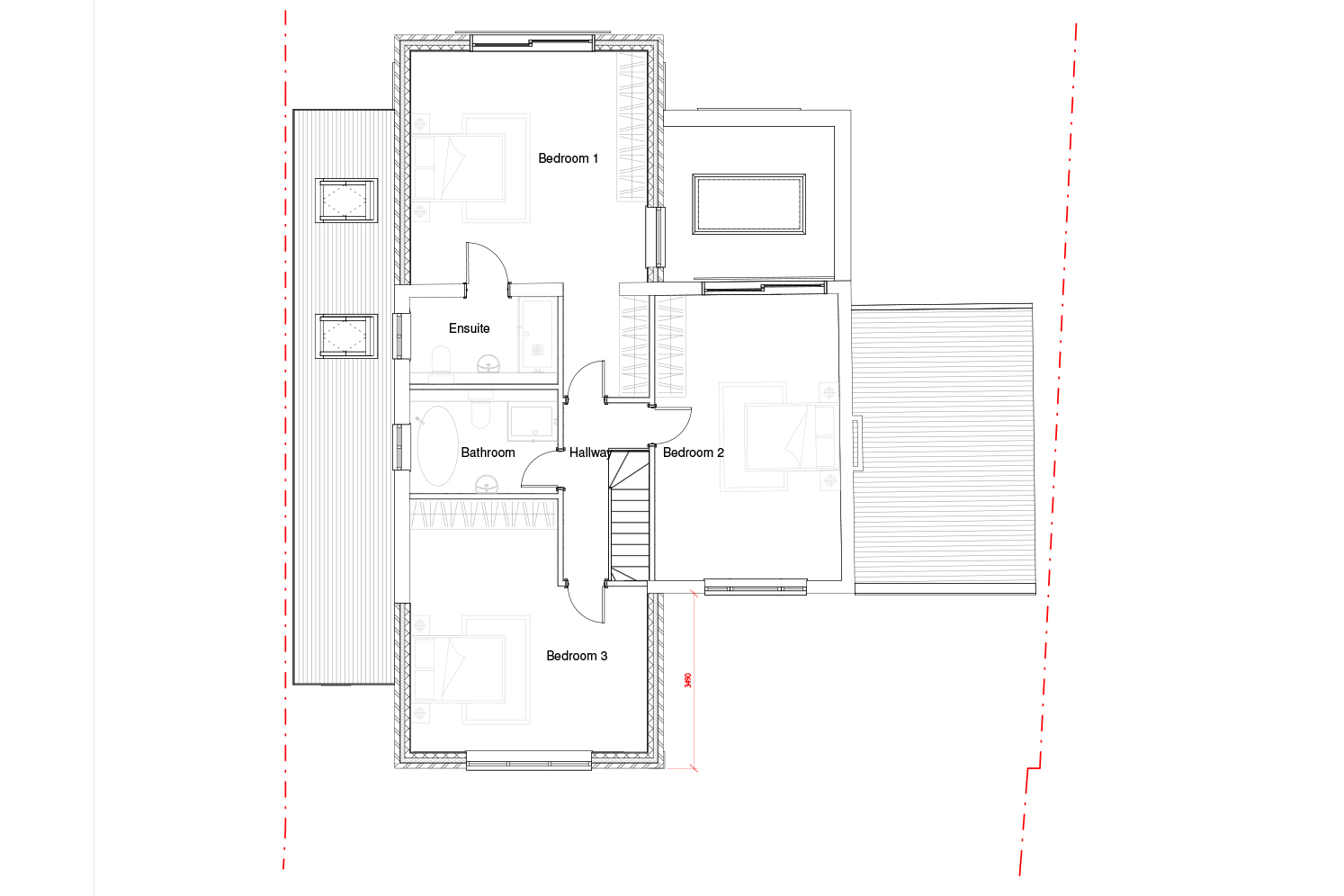
THE BRIEF
The project reviewed alternative layouts to reconfigure the ground and first floors, omit the previously approved side extension, and extend further to the rear. The brief included three bedrooms, a family bathroom and an en-suite, improved access to the rear terrace, and options to revise the stair and roof form.









OUR SOLUTION
The proposal reorganised the ground floor around a full-width kitchen/living/dining space within a rear extension, supported by a snug and an office, plus utility and WC variants. Upstairs, bedrooms were resized through plan changes and a rear projection, with revised bathroom locations and retained terrace access from a rear bedroom.
