THE BRIEF
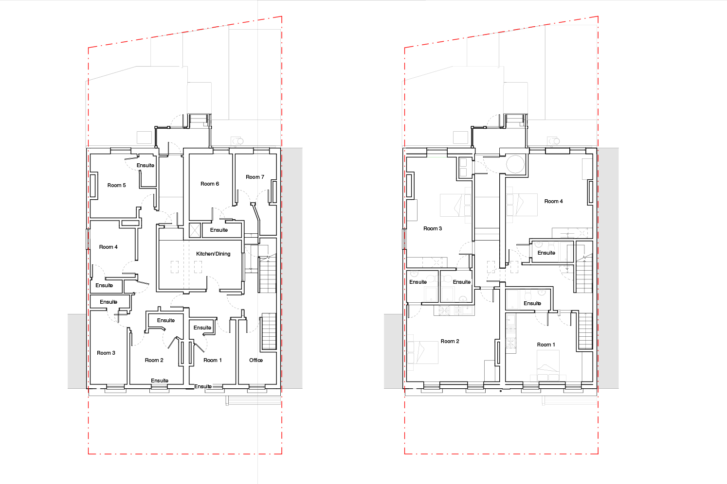
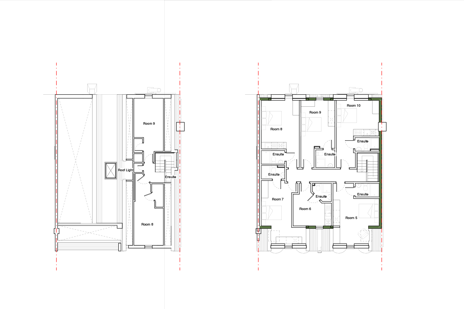
The project updated a mixed-use building with a ground-floor restaurant and upper-floor bed and breakfast accommodation. The submission sought a change of use to a 10-bedroom larger HMO while keeping the restaurant, focusing works on the first and second floors and associated roof alterations.




OUR SOLUTION
The existing stair and rear escape route were retained, with the first floor organised around the main spine wall and rooms placed to the front and rear. The second floor was enlarged within the roof by adjusting the roof form and adding side dormers, creating six ensuite bedsits with kitchenettes, supported by added rooflights/skylights.

