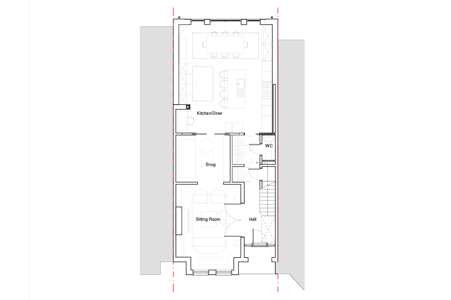
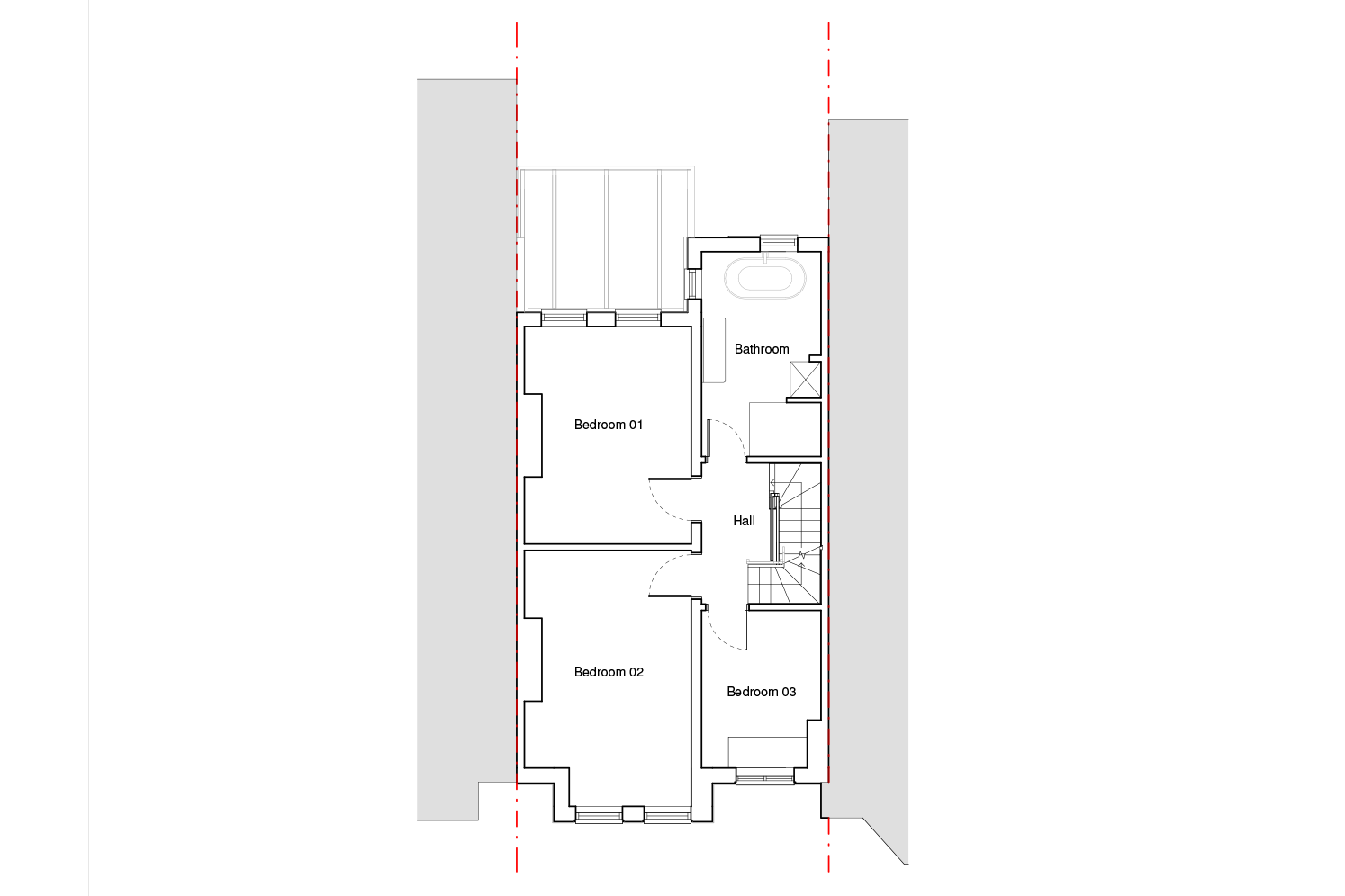
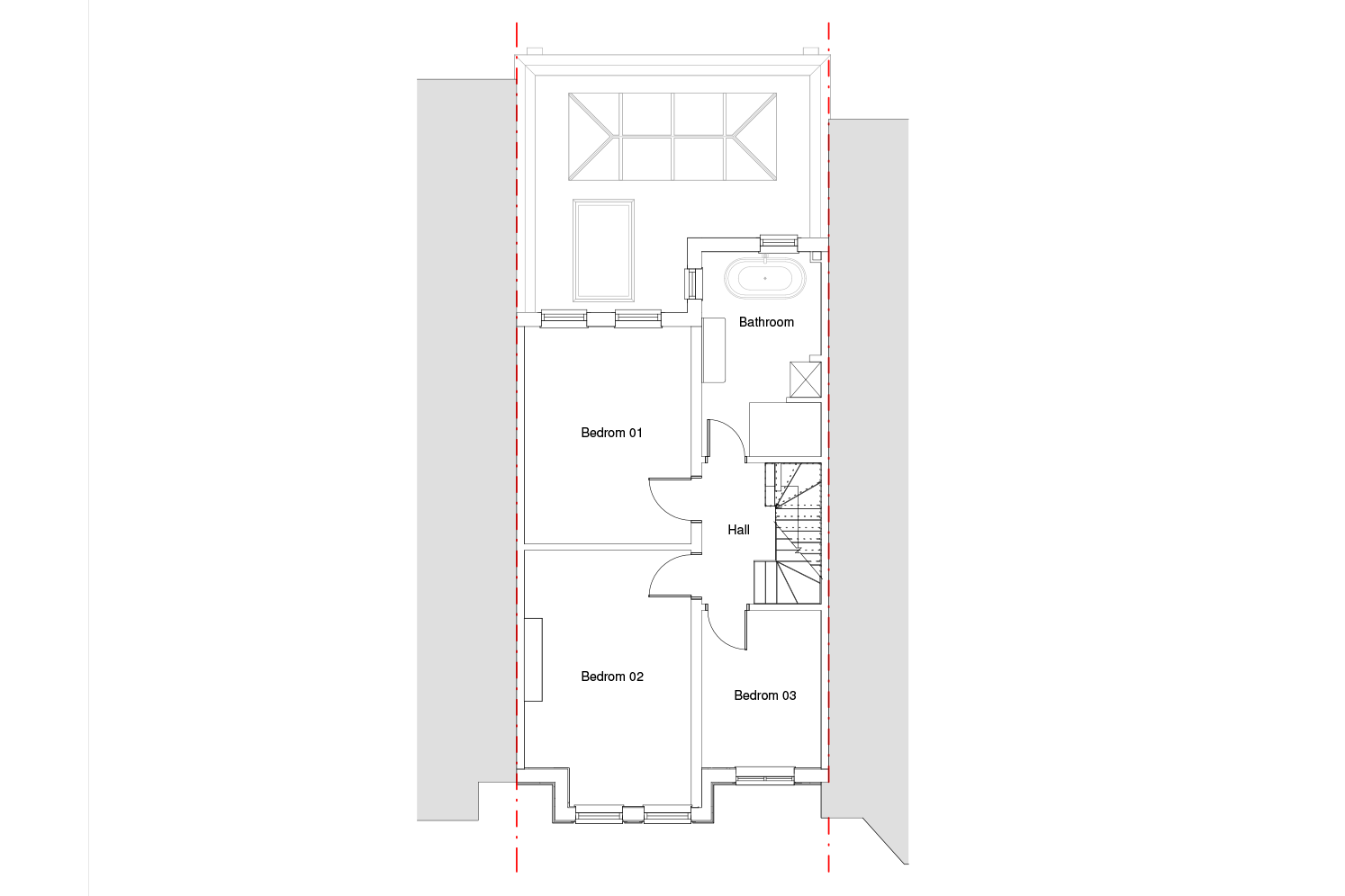
THE BRIEF
The ground floor was fragmented, and the conservatory was described as uninsulated. The loft stair was identified as non-compliant. The brief asked for a loft master suite with ensuite and wardrobes, and a reworked ground floor with open-plan kitchen/dining, WC, utility/storage and rear elevation options.







OUR SOLUTION
Options proposed a new compliant loft stair and master-suite layouts with ensuite and wardrobes, using rooflights and a juliette balcony. Ground-floor layouts tested a 4.5 m rear extension for open-plan kitchen/dining/living, with alternative WC/utility placements and rear opening types.

