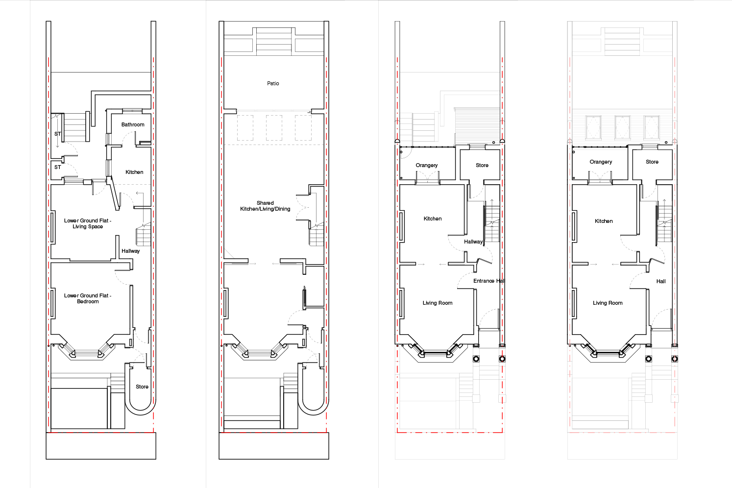
THE BRIEF
A mid-terrace Victorian house within a conservation area required additional accommodation and full refurbishment. The rear solarium leaked and caused mould, and the existing rear outrigger stopped at first-floor level, leaving upper levels without a nearby bathroom.




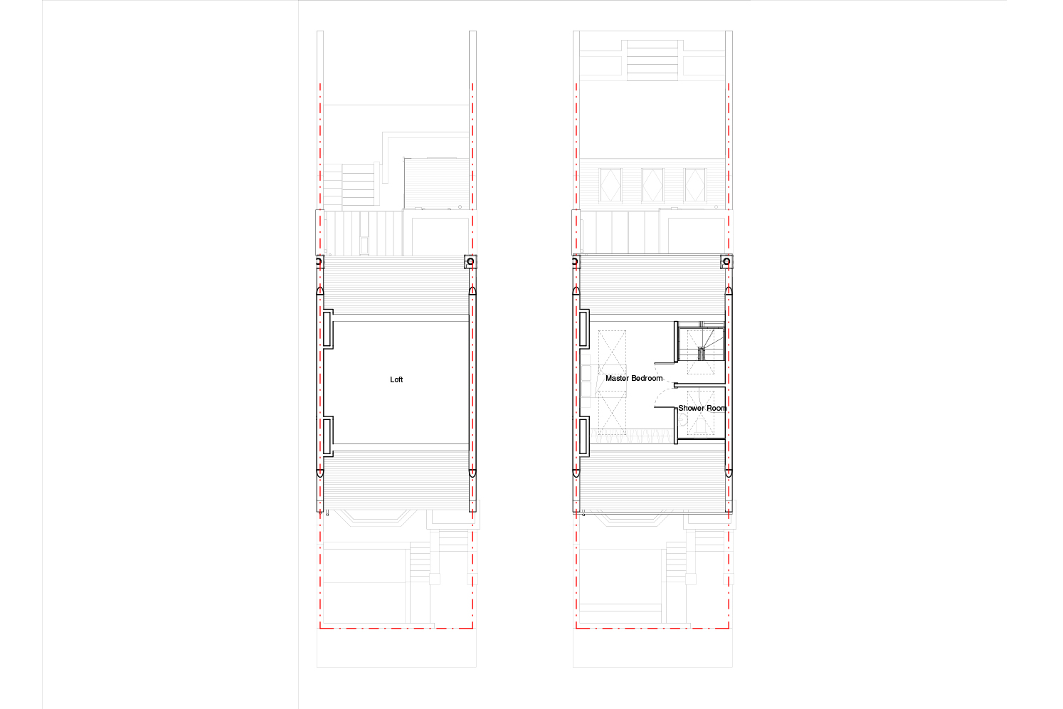
OUR SOLUTION
The roof was converted into a habitable level with front rooflights and two rear lead-finished barrel dormers. The rear outrigger was raised to form a bathroom on the half landing between first and second floors. A new loft bedroom was added with an ensuite shower room.

