THE BRIEF
A vacant backland site, formerly used for stables and later left as concrete hardstanding for ad hoc parking, sat behind existing houses within a conservation area. The plot presented an unformed edge to the lane and limited amenity value, while the wider context supported additional small-site housing.




OUR SOLUTION
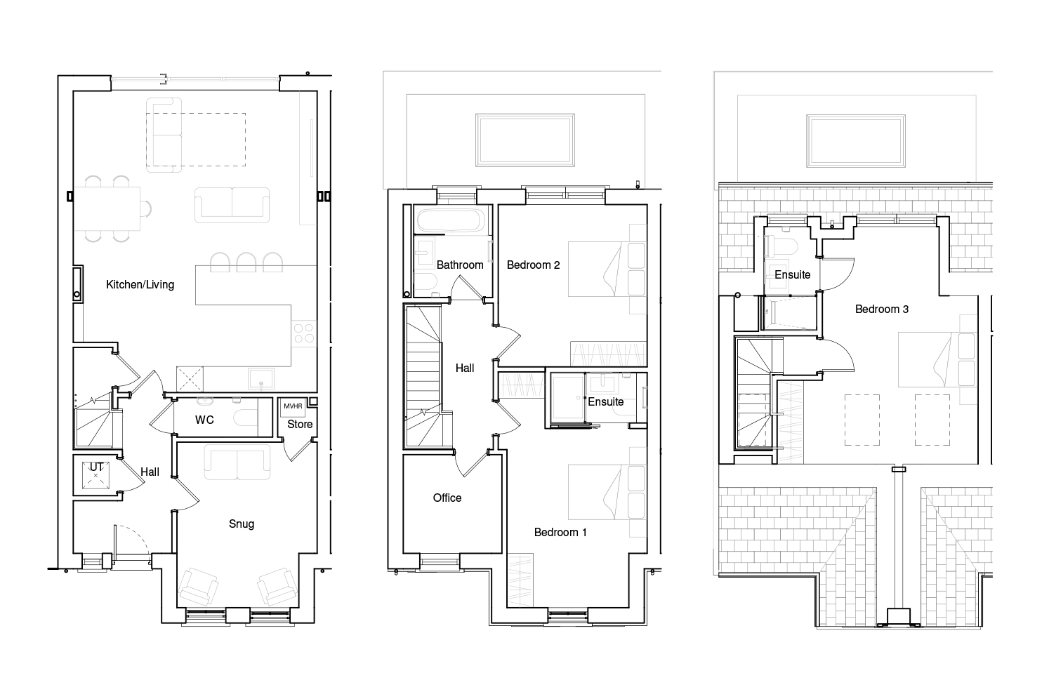
Four terraced dwellings were set across the plot width, fronting the lane behind boundary walls and front gardens, with rear gardens. Each house organised living space at ground level—hall, snug, WC and an open kitchen/living room to the garden—then stacked bedrooms, bathrooms and a loft-level suite above.
